Development Potential
Elspeth Road SW11
Clapham Common
This well-proportioned and conveniently-located, ground-floor flat with west-facing garden is one of two flats in a converted Victorian property with attractive features and high ceilings. It also has huge potential to convert into a two-bedroom property by extending to the side and rear. Situated just fifty yards from the edge of Clapham Common, a quarter mile from Clapham Junction station and very close to numerous wining, dining and shopping options.
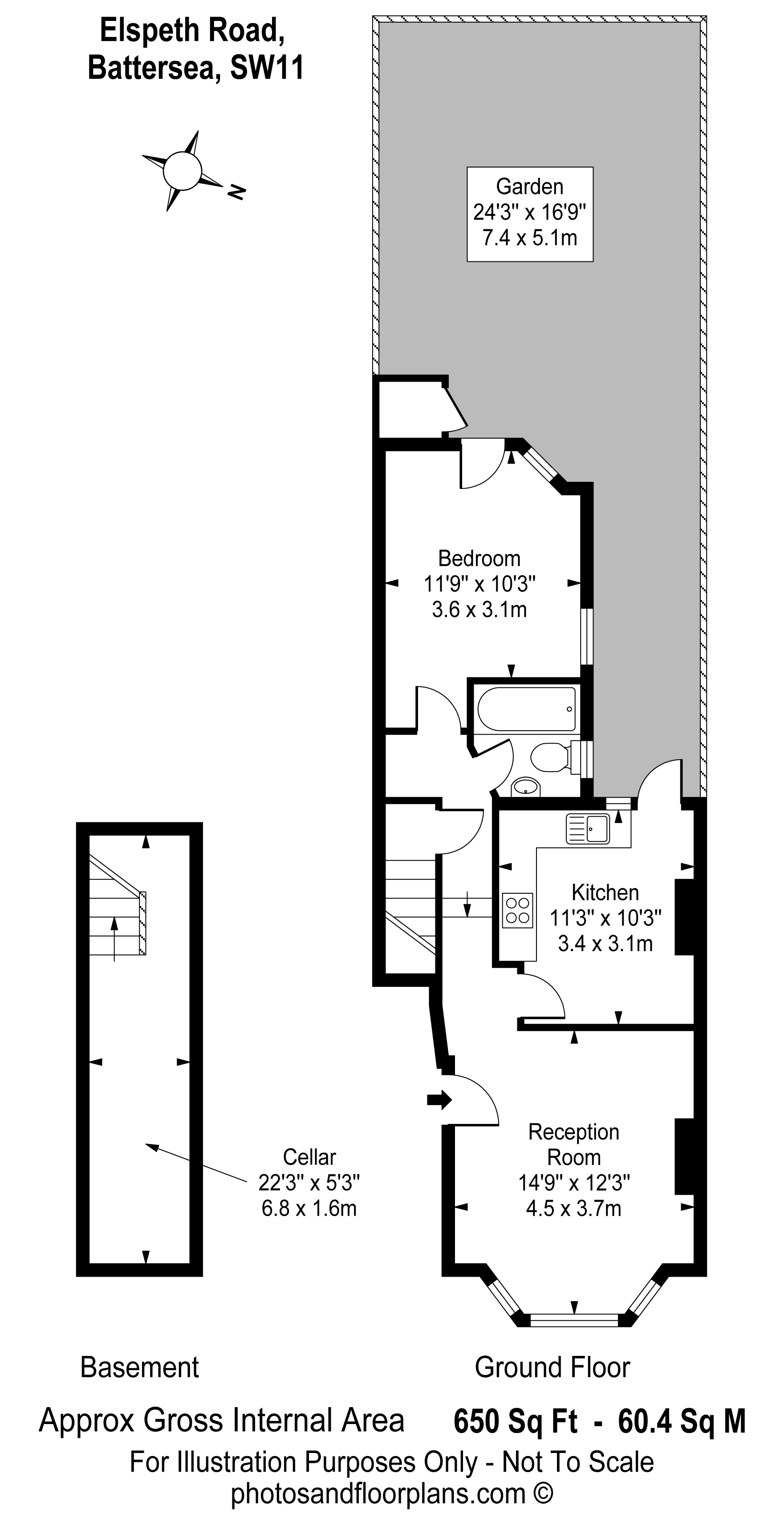
This well-proportioned and conveniently-located, garden flat occupies the whole ground floor and west-facing garden of this attractive converted Victorian property, with just one other flat above, which shares the freehold. It benefits from high ceilings through the existing living room and kitchen which are both to the front of the property, the kitchen being well fitted and equipped and having doors to the garden. There are stripped wooden floors throughout the kitchen and reception room, a smart bathroom/WC and large double bedroom to the rear which also has doors onto the sunny garden. The flat has large windows and nice light throughout and is neutrally decorated and generally well maintained. It also has a storage cellar that runs beneath the hallway.
Flats like these are commonly extended today to form two-bedroom properties by extending into the side and rear parts of the garden to create an-open plan living room/kitchen at the rear, whilst at the same time turning both front rooms into bedrooms. This does require planning permission but numerous plans of such flats are available on request.
Elspeth Road runs immediately off Clapham Common North Side. The bars, restaurants and shops of both Battersea Rise and Lavender Hill are close at hand as is the wider range of shopping at Clapham Junction and Northcote Road. Transport connections can be found at Clapham Junction BR station and also at Clapham Common underground and there are many bus routes close by.
Location
Elspeth Road SW11
Floor Plan

EPC
Brochure
go to top