Wonderful Proportions
151 Lavender Hill SW11
Clapham Common
An incredibly spacious three double bedroom, three bathroom maisonette with superb private roof terrace occupying the upper two floors of a substantial Victorian property. The glorious entertaining space comprises separate open-plan kitchen/ breakfast room and large front reception with a high-quality finish throughout. Situated in an extremely convenient position just half a mile from Clapham Junction and close to the green spaces of Clapham Common and the numerous bars, shops and restaurants that surround it.
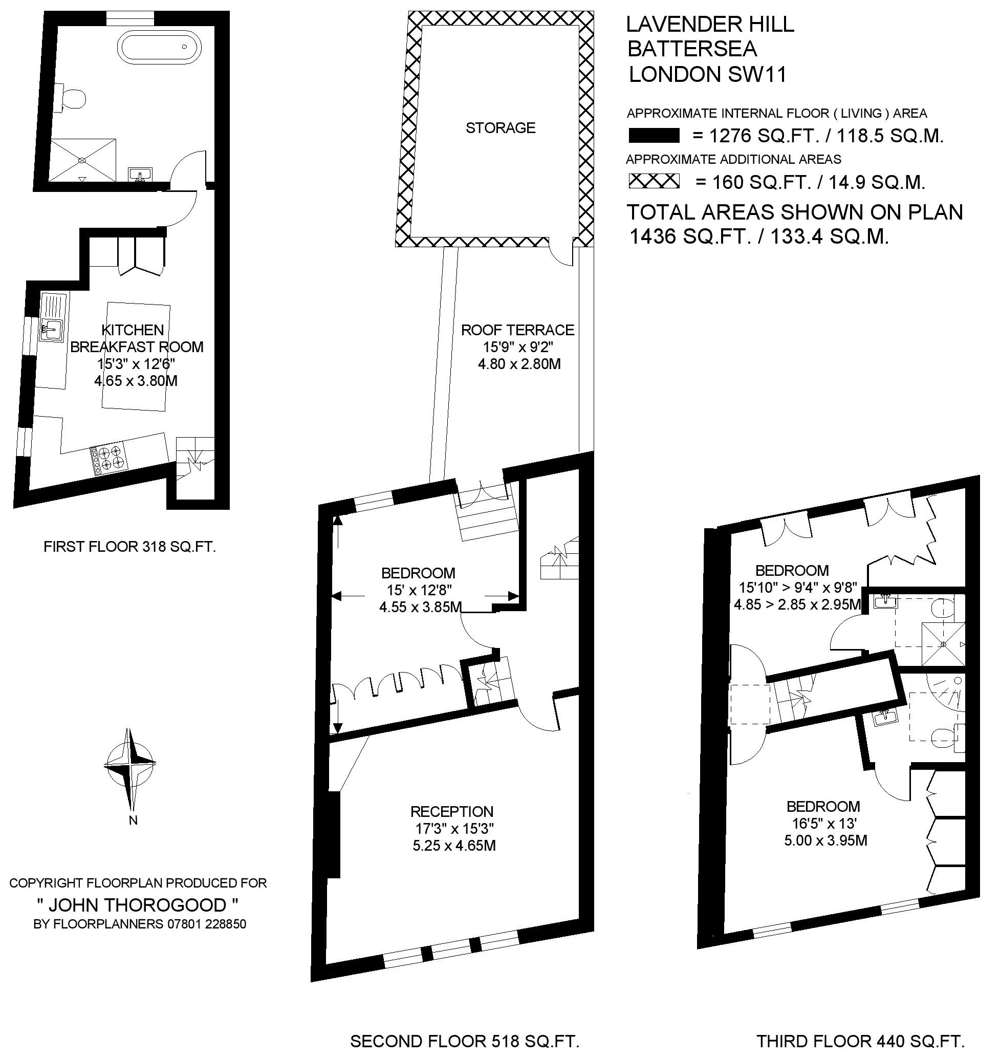
Renovated fully and extended by the present owners, this substantial property occupies a massive floor area (1276 SQ.FT./ 118.5 SQ.M. + storage) with great proportions and plenty of natural light throughout. A recent loft extension has created an extra floor with two double bedrooms, each with built-in wardrobes and en-suite facilities. The first floor has a further large family bathroom with separate bath, large shower and utilities. Underfloor heating has been installed in the kitchen and all bathrooms. The flat is entered directly into a large and sociable open-plan kitchen/breakfast room, which has been very well-fitted and equipped. This, together with the very generous front reception, creates a great first floor. The middle room in between can be a large third bedroom or, if not required, can be a further living space as it opens on to the private south facing terrace which is decked and includes additional, extensive storage.
Lavender Hill lies in the heart of southern Battersea between Clapham Junction and Clapham Old Town. This property is positioned on the top two floors above a shop, with a smaller flat in between.
The location is super-convenient, just half a mile from Clapham Junction and close to the green spaces of Clapham Common and the numerous shops, bars and restaurants that surround it. Further tube and bus facilities are close close by.
Location
151 Lavender Hill SW11
Floor Plan
EPC
Brochure
go to top



