Catchment Potential
Leathwaite Road SW11
Between The Commons
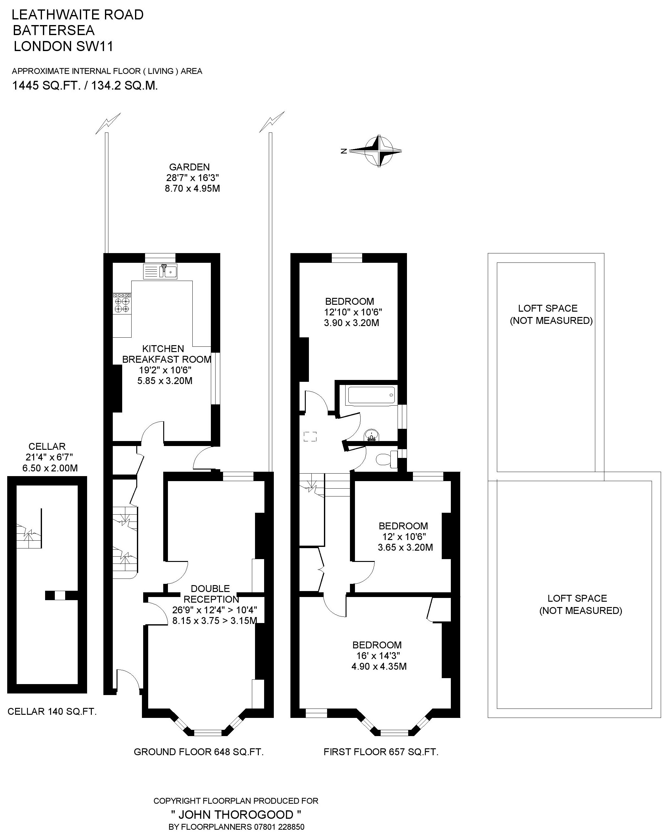
This rare, un-extended, three double bedroom, Victorian house, with 29’ garden, retains lovely original features and offers great potential for expansion (STPP) into the front and rear lofts and also the garden. It’s positioned in the usual catchment for the outstanding Honeywell Primary School, close to fashionable Northcote Road and good tube/train links to The City and West End.
Un-extended, three-bedroom, Victorian properties Between the Commons are becoming harder and harder to find these days, let alone ones in the catchments for the highly sought-after state schools (Primary and Secondary). This property retains some lovely original features and has been well maintained by the present owner, who has brought up her family and lived happily here for at least 30 years. It does offer scope for updating and there is enormous potential for extension into the garden side and rear, and also into the two generous loft spaces (subject to obtaining the usual consents although there is ample precedent right next door)!
The house has particularly good proportions and, at 29’, its garden is comfortably longer than average for Between the Commons. The beautiful double reception has high ornate ceilings, a lovely, original, marble fireplace and a large front bay window which enjoys a nice open outlook. The hall opens into a generous cellar and has a side door to the garden. To the rear it opens into a sizeable kitchen/breakfast room with ample space for a table and extensive units. It has windows to the side and rear and the adjacent property has already built the kitchen extension party wall which would make it easier and cheaper for an incoming buyer here to do the same kind of extension. The garden is mature and faces east but also has a lovely open southerly thanks to there being no houses on the adjoining side road at that point. Consequently, it receives excellent daytime sun. Also, at 29’ in length, a buyer can afford to build not only sideways but also backwards to really create a special and sizeable kitchen/family extension.
Upstairs are three well-proportioned double bedrooms, a family bathroom/WC and an additional separate WC alongside. The large front bedroom also has some attractive original ceilings, large windows and a more open outlook than some, being opposite the entrance to Dulka Road. With the two rear loft spaces converted this house could become a five-bedroom, three-bathroom house in line with others in the area.
Leathwaite Road is in the area known as “Between the Commons” running south from Battersea Rise down to Chatto Road. This property is right at the bottom end where the gardens are longer, where it is much quieter and where it is closest to Honeywell School. The proximity of the two Commons, Northcote road’s popular shopping parade and smart bar/restaurants, in addition to the large number of private and state primary schools / nurseries, have made this area a magnet for young families. In particular Honeywell State Primary School is very close by as are the other highly sought-after state schools, Belleville Primary School and Bolingbroke Academy (Secondary). Furthermore, there is easy access to The City and West end via Clapham South’s Northern Line tube and Clapham Junction mainline station (each about three quarters of a mile away) serving Waterloo and Victoria. Clapham Junction is also the converging point for numerous bus routes. More extensive shopping including several supermarkets can also be found at these points.
Location
Leathwaite Road SW11
Floor Plan

EPC
Brochure
go to top