Exciting Opportunity
Thurleigh Road SW12
Between the Commons
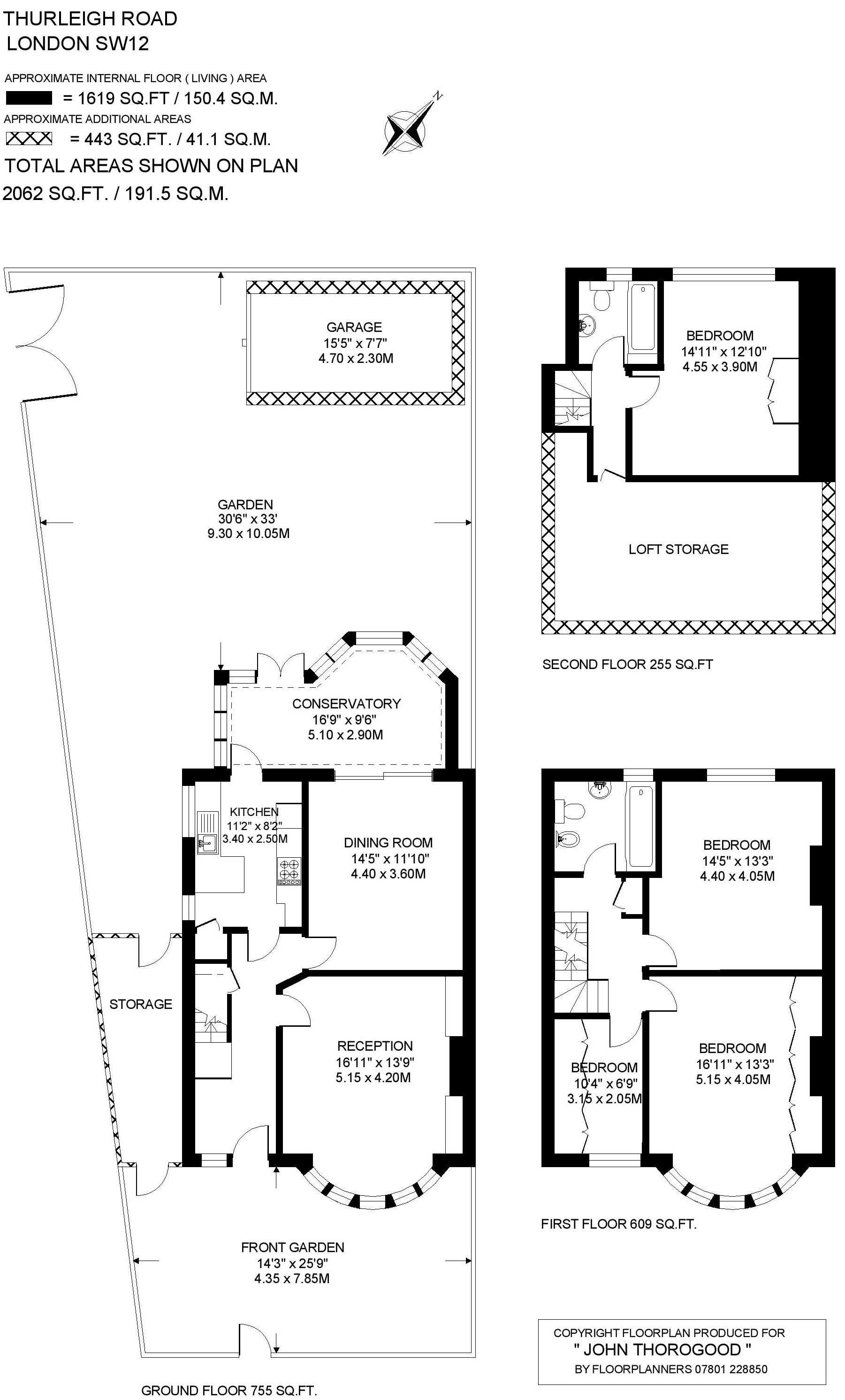
This unique, semi-detached, corner house (c. 1926) with extra-wide, side plot, side access, garage and south-facing garden is a bright, attractive and enticing four-bedroom property offering lots of potential (STPP) for extra development to create a special family house in excess of 2000 square feet. Situated in a prime, leafy location Between the Commons, 500m from Clapham South tube and 250m from Clapham Common. Excellent local schools, and options for shopping, wining and dining are plentiful.
Positioned on a corner with an extra piece of land on the open side, is this unique, semi-detached, property, (built c. 1926). The house comes with this extra wide side plot, side access, rear garage and lovely mature south-facing garden. The house is perfectly fit for immediate occupation but the magic lies in its potential. If you need help with imagining what you might be able to create, simply glance across Holmside Road to the opposite corner. A near-identical house there (sold by us a few years back) has maximised in several areas since, including a two-storey extension, to make themselves arguably the best house on the block. Until now, that is…! (NB. “the block” here comprises Holmside Road, Thurleigh Avenue and this section of Thurleigh Road).
This style of house is usually wider, squarer and brighter than their Victorian counterparts. But here with use of glass on the open side, you have a chance to make something even brighter and more special. Currently arranged with four bedrooms, and two bathrooms courtesy of a partial loft conversion, there is scope to extend further here too and increase to five, and update/incorporate the ground floor extension too, not to mention to do something interesting with the garage. (Gym/Studio/Mancave) Most of these works would be subject to obtaining planning consent, but there is ample precedent.
The location is first-class. Thurleigh Road is a prestigious address, mainly made up of large family houses. This property is situated at the Eastern end, just 500m from Clapham South’s Northern Line tube station which gives fast and direct services to The City/West End and only 250m from Clapham Common’s green expanses and tennis courts. It is also close to numerous good schools and a variety of wining, dining and shopping options on Northcote Road, Bellevue Road and at Clapham South. There is also a very handy Sainsbury’s Local on Nightingale Lane and a well-established café/patisserie.
Location
Thurleigh Road SW12
Floor Plan

EPC
Brochure
go to top