Sensational Victorian
Montholme Road SW11
Between the Commons
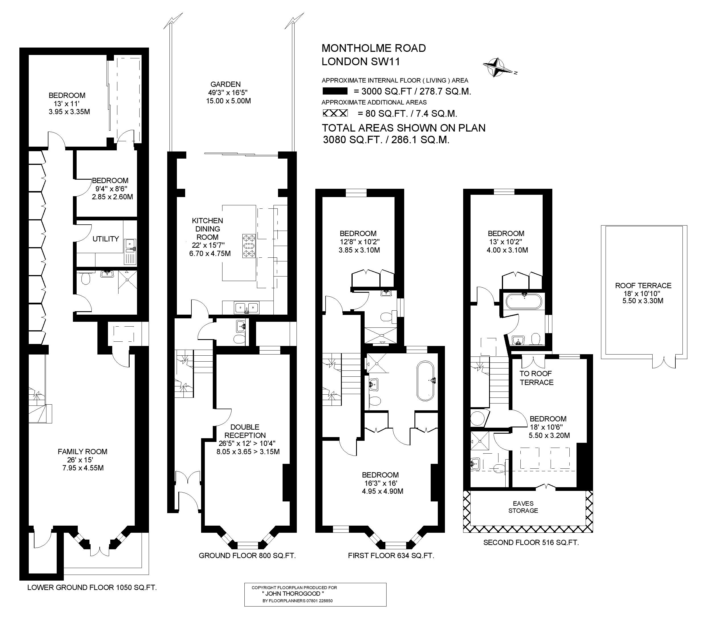
This sensational and substantial Victorian house, blessed with an enviably large and beautiful SW-facing garden, has recently been extended in all directions during a complete programme of redesign and renovation. The result is over 3000 square feet of impeccable accommodation in this highly sought-after position close to Northcote Road, Honeywell School (282m), Belleville School (465m) and good transport facilities.
This section and side of Montholme Road has long been adored by the cognoscenti. Its rare gardens are among the largest between the commons and have the most private and wonderful aspect – SW-facing and backing onto other large gardens creating a wonderfully sunny open and yet secluded feel. There are few better places to execute this sort of transformation. This property is now a superb family home with outstanding family living space, a sumptuous master suite, and excellent guest accommodation as part of a huge basement excavation (which goes beneath part of the garden). There is even a top-floor roof-terrace – a complete sun-trap with far-reaching views.
The whole property has been fitted to an extremely high standard and finished with contemporary flair. The specification includes under-floor heating to ground and basement floors and to all bathrooms; air-conditioning to both top level bedrooms; top-quality kitchen appliances including Miele Gaggenau and Liebherr; wooden double-glazing throughout; built-in speakers to all living spaces plus master bathroom – all installed by First-Stop AV; electronically-operated rooflight with rain-sensor and a Rako dimmable lighting control system to the kitchen, garden, lounge and main basement room.
The nearby area, known as Between the Commons, has a delightful community feel centred around fashionable Northcote Road’s specialist boutiques, cafes and restaurants and its thriving street market. It is a wonderful area for families with an abundance of excellent schools for all ages in both sectors. Transport facilities include two mainlines stations at Wandsworth Common and Clapham Junction and the underground at Clapham South. Numerous bus routes also run close by. The green open spaces of Clapham and Wandsworth Commons provide very good recreational facilities.
Location
Montholme Road SW11
Floor Plan

EPC
Brochure
go to top