Catchment Opportunity
Bramfield Road SW11
Between the Commons
This charming 5-bedroom, Victorian, family house, with sunny, south-facing garden, retains many attractive original features and has potential for further expansion and updating to an incoming purchaser’s own tastes. Situated in a peaceful, leafy location just yards from Wandsworth Common, close to good schools, transport connections to The City and The West End and Northcote Road’s fashionable variety of bars, restaurants and specialist shops.
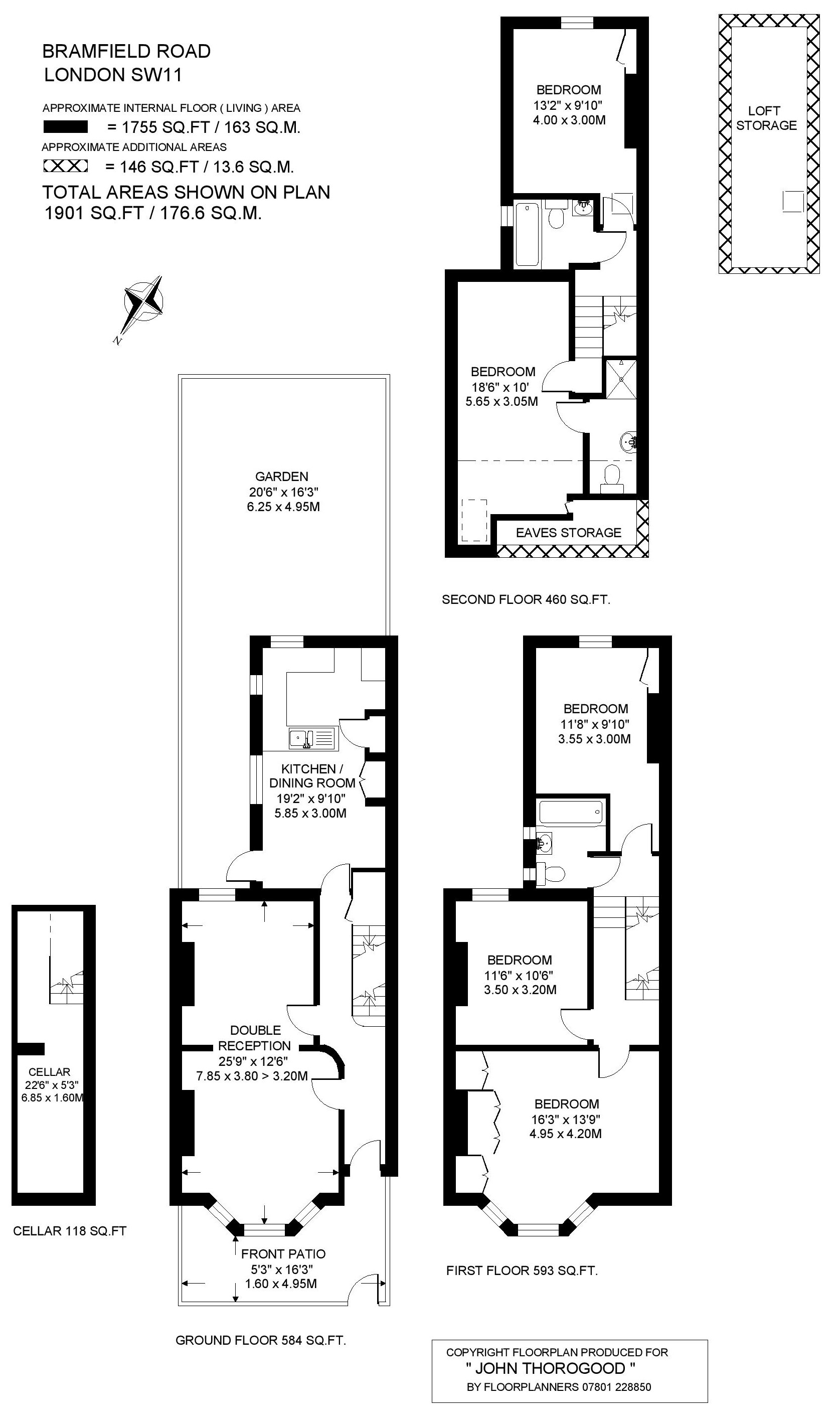
Positioned just 50 yards from the edge of the green open spaces of Wandsworth Common, this delightful Victorian property has been in one family ownership for more than three decades. It has been extended into the large loft space to create a fifth double bedroom and third bathroom (en suite) but retains potential for extension on the ground floor into the side return and/or backwards into the garden.
Ground floor accommodation includes a beautiful double reception room with original stripped and varnished wooden floorboards, high ornate ceilings and an attractive period fireplace. To the rear is a spacious kitchen/breakfast room with ample space for a dining table. The side passage running alongside the kitchen is an ideal space for extension to enlarge the kitchen out to the full width of the plot as so many others have done (subject to the usual consents).
Doors from here lead out to a lovely, landscaped, south-facing garden, with some mature shrubs and an unusually open aspect thanks to there being only low rise buildings behind. Consequently, both the garden and the kitchen receive excellent summer and winter sunshine.
Beneath the hallway is a useful storage cellar and there is potential to dig a full basement as others have done on the street.
Upstairs all five bedrooms are good doubles and there is a bathroom or shower room on each level.
The house is bright and attractive and presents the opportunity for some further modernisation and updating.
The house is positioned in the heart of the area known as between the commons, and on the section of Bramfield Road which runs between Northcote Road and Wandsworth Common. Excellent schools, in particular the state schools, Belleville, Honeywell (both primary) and Bolingbroke (secondary) are close by, whilst good transport connections to The City and West End and a huge variety of wining, dining and specialist shopping options abound in the area.
Location
Bramfield Road SW11
Floor Plan
EPC
Brochure
go to top



