Southern Comfort
Thurleigh Road SW12
Between the Commons
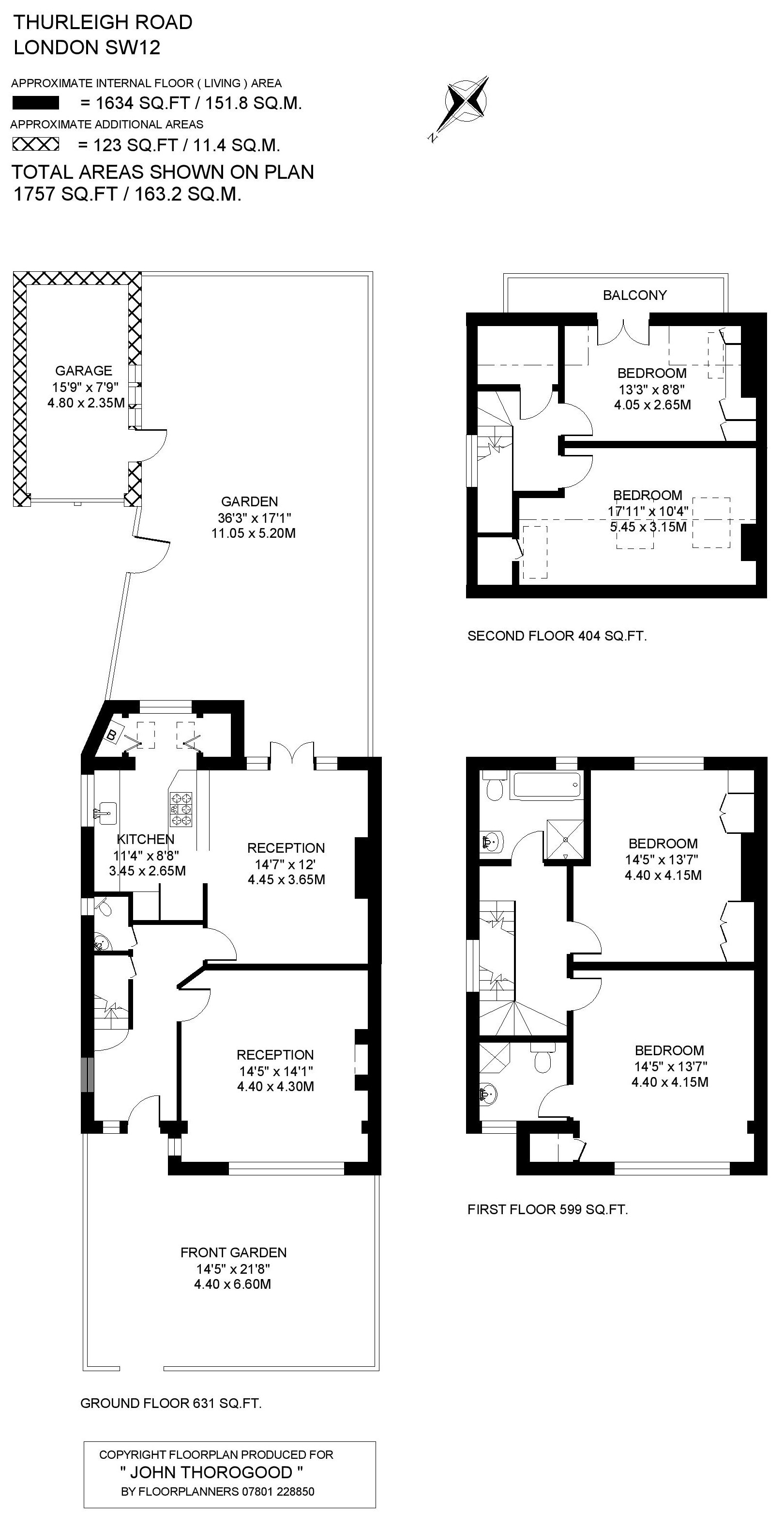
This wide, semi-detached house from the “roaring 1920s” has excellent family living space, a longer-than-average south-facing garden (36’) and a garage. The house is approximately a quarter of a mile from the tube at Clapham South, with Clapham Common and good private/state schools close by.
The house is set back a little behind a small front garden which opens into a generous hallway with an open feel and access to the downstairs cloakroom/WC. The bright rear reception room and the adjacent, well-equipped kitchen have been knocked together forming a spacious, cleverly-designed and sociable kitchen/family room with island and rear dining area, whilst to the front is a wide living room boasting large windows with stained glass. Both of these spaces have an attractive original over-mantel fireplace. Rear doors open on to a 36’, sunny and well-stocked, south-facing garden with rear dining patio and useful side access. The garage, accessed down a shared driveway between each pair of these houses, fits a small car but provides excellent storage. Other properties along this section of the road have converted their garages into home offices/ studios or even an additional bedroom and bathroom – ideal as a granny flat/nanny accommodation.
On the first floor there are two generously sized double bedrooms, one with built in wardrobes and one with an en-suite shower room/WC. There is also a well-fitted family bathroom (with bath and separate shower cubicle) located on this floor. The second floor, attractively designed and converted from the loft, comprises two more good bedrooms. The rear of these has a delightful sunny south-facing balcony.
Thurleigh Road runs directly between Clapham Common and Wandsworth Common in the area known as ‘Between the Commons’, this house being towards the Clapham end. The Northern Line tube (zone 2) at Clapham South is about a quarter of a mile away and there are numerous bus routes which also serve The City, West End and Chelsea. Clapham Common has numerous recreational facilities including tennis courts, open-air gyms and playgrounds. The shopping, restaurants and bars of Northcote Road are close by and there are numerous excellent nurseries and schools in both sectors in the local neighbourhood.
Location
Thurleigh Road SW12
Floor Plan

EPC
Brochure
go to top