Wide and Imposing
Gayville Road SW11
Between the Commons
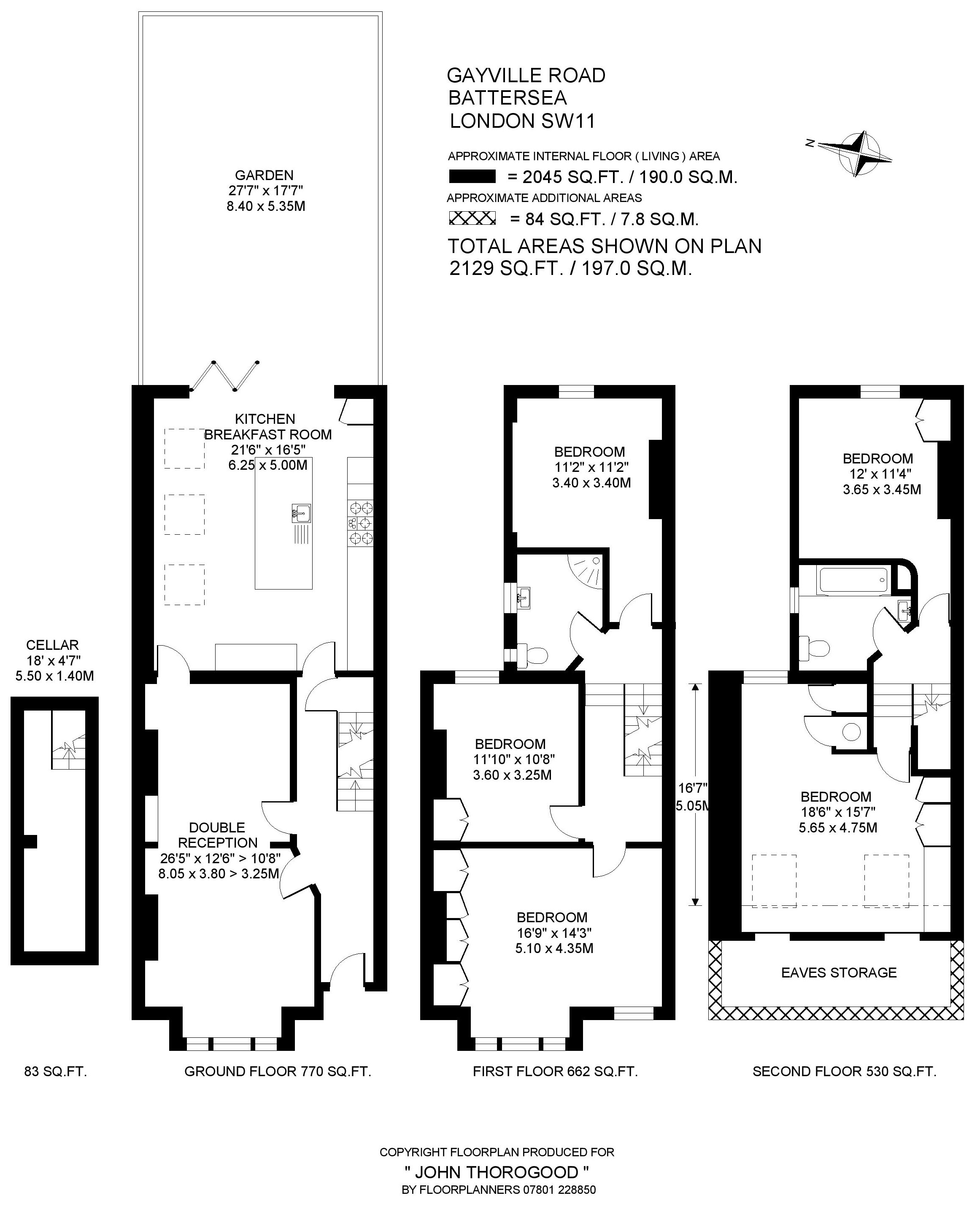
What appear to be standard Victorian terraces often hide surprises. This stylishly-designed, chunky, “square-bayed” example conceals more square footage than many other similar-looking houses (currently at 2129 SQ.FT/197 SQ.M). Its excellent kitchen extension creates an outstanding family living space with a sleek finish and a wonderful sense of light and its sizeable loft has been converted into a large and bright 5th double bedroom. It’s close to fashionable Northcote Road, both commons, excellent tube and train links to the City / West End and the highly-prized Honeywell School.
This wide and imposing five double bedroom, Victorian, terraced house has been tastefully modernised inside and out whilst retaining its beautiful Victorian features. The handsome double reception room boasts matching marble fireplaces and high ceilings, original sash windows in the wide square bay windows, and solid wood doors plus oak floors which run through into the hall.
A contemporary kitchen extension has transformed the large rear space on the ground floor into a fantastically light and open-plan kitchen/family/dining room opening out through fully-folding, glazed doors to the garden. It is fitted with an extensive range of modern storage units, stone worktops, high-quality built-in appliances and a large island unit still allowing ample dining space for a family. The garden is a very good size for the area (28’) and is attractively landscaped with a patio for outside dining, plus a rear lawn finished by a raised flowerbed across the back. It faces east and is very open to the south receiving summer sun until around 4.30pm. It also has a good degree of privacy with high trellised borders and low houses directly behind. Additionally, there is a handy storage cellar/utility room running beneath the hall which has good head-height and has been dry lined and plumbed with utilities.
Over the upper floors the attractive blend of original features combined with a light neutrally decorated feel continues. There are five double bedrooms in total, including a lovely spacious main bedroom to the front with a wall of built-in wardrobes. These rooms are well served by a shower room on the first floor and a bathroom on the second floor.
Gayville Road is a quiet, highly sought-after, tree-lined road running between Thurleigh and Broomwood Roads in the hugely popular area known as Between The Commons. These commons, (Wandsworth and Clapham), provide huge green spaces, recreational activities and lots of sports clubs. There are excellent transport links from Clapham South tube station (900m away) which has regular services accessing both the City & West End. Mainline services are also available to Victoria and Waterloo from either nearby Wandsworth Common station (700m away) or Clapham Junction (1300m) and there are numerous local buses. The property is close to the two principal state primary schools, Honeywell and Belleville, and there is a good choice of private education and local nurseries in the area. The highly fashionable Northcote Road, with its wonderful selection of restaurants, specialist shops, wine bars and thriving street market is very close by.
Location
Gayville Road SW11
Floor Plan
EPC
Brochure
go to top



