Rare Gem
Montholme Road SW11
Between the Commons
This rare gem of a house almost has it all: extra-width, large garden (51’), sunny southwest aspect, open rear outlook, huge untapped potential, not to mention some handsome original Victorian features – and it’s all (incredibly) in the (likely) catchment for Honeywell school. With some extension and investment this property has the potential for over 3500 square feet of accommodation which, together with said garden, would, you’d be forgiven for saying, make it not only the best house on this highly sought-after street but arguably one of the best single fronted terraced houses between the commons. On the market for the first time in over forty years, you can expect to update and refurbish. But what you are getting here is a prime plot with no chain!
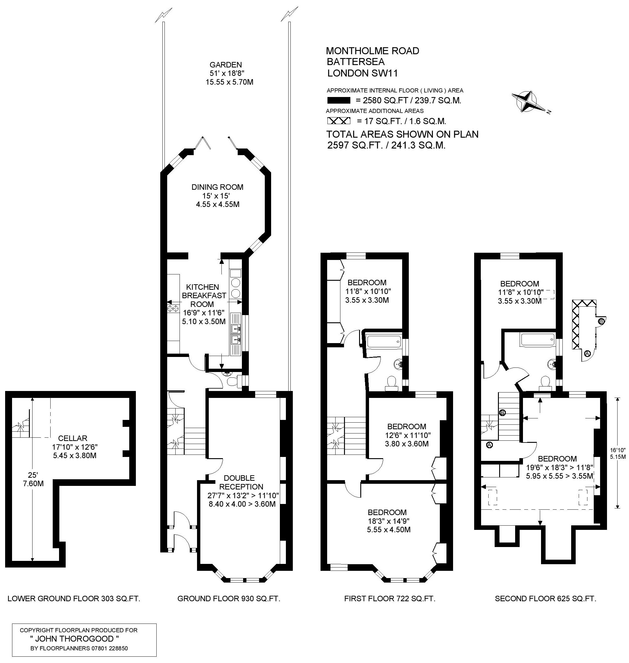
This imposing Victorian family home (already over 2500 square feet) is an exceptional property and a rare opportunity indeed. This is virtually the only place you’ll find a house with a 50’ + south-west facing garden between the commons. In addition to enabling a spot of “lawn cricket” with the kids, it also allows for significant rear expansion at ground (and potentially basement) level to create a splendid and enviable family home. This Victorian 5–bedder is not only southwest-facing at the back but is also further blessed with a rear outlook over the substantial gardens of Blenkarne Road directly behind.
Already extended into the loft, an incoming buyer would be mainly able to focus their minds on ground and basement levels to maximise the property’s huge potential. But the existing layout has been well thought out to suit a growing family, with plenty of ground floor living space courtesy of the sizeable conservatory extension, a downstairs WC and a large cellar. Equally, upstairs provides five spacious double bedrooms with a generous bathroom on each floor. So, whilst it may be that the next owner doesn’t stay for forty years, they undoubtedly could and one can easily see why they would.
The property is located close to Northcote Road’s fashionable restaurants, bars and shops, with tube/train connections nearby at Clapham South, Wandsworth Common or Clapham Junction giving good access to The City and West End. It is close to numerous excellent schools including the highly sought-after Honeywell and Belleville primary schools and the relatively recently-opened secondary school, Bolingbroke Academy. Both Wandsworth and Clapham Commons are nearby with beautiful green spaces and good recreational facilities.
Location
Montholme Road SW11
Floor Plan
EPC
Brochure
go to top



